Just Listed

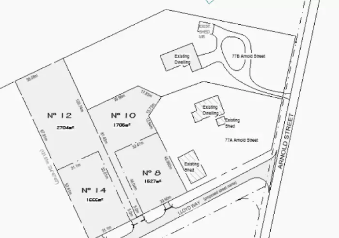
8 Lloyd Way, George Town

$180,000

1,527 m2

Small Subdivision, Quiet Location, Large Block - George Town Tasmania

Build Your Dream Home at No. 8 Lloyd Way (Proposed Street Name)

Discover the perfect balance of space, serenity, and convenience with this generous 1527m² block, complete with power, water, and NBN already connected to the site.

Nestled in a peaceful, semi-rural setting, this private subdivision offers the ideal place to create your dream lifestyle — with plenty of room for your home, shed, gardens, and outdoor living spaces.

Enjoy the best of both worlds:
• Just 3 minutes to George Town’s main street, where you’ll find shops, schools, and essential amenities.
• Only a 35-minute drive to Launceston for expanded shopping and dining options.
• Beautiful local beaches are just a few minutes away — perfect for weekends and relaxed coastal living.

Don’t miss this rare opportunity to secure a spacious, well-serviced block in a great location.

For enquiries please phone: 0417 870 059

Details

Address 8 Lloyd Way, George Town
Price $180,000
Property Type Residential
Property ID 1155
Category Vacant Land
Land Area 1,527 m2

Share

Sale By Home Owner photo

Sale By Home Owner

1300 841 864