9/10-12 Lonsdale Street, Braddon

$520,000+

1 1 1

One-bedroom apartment in Arte Braddon – lots of extras

The phone enquiry code for this property is - 2186

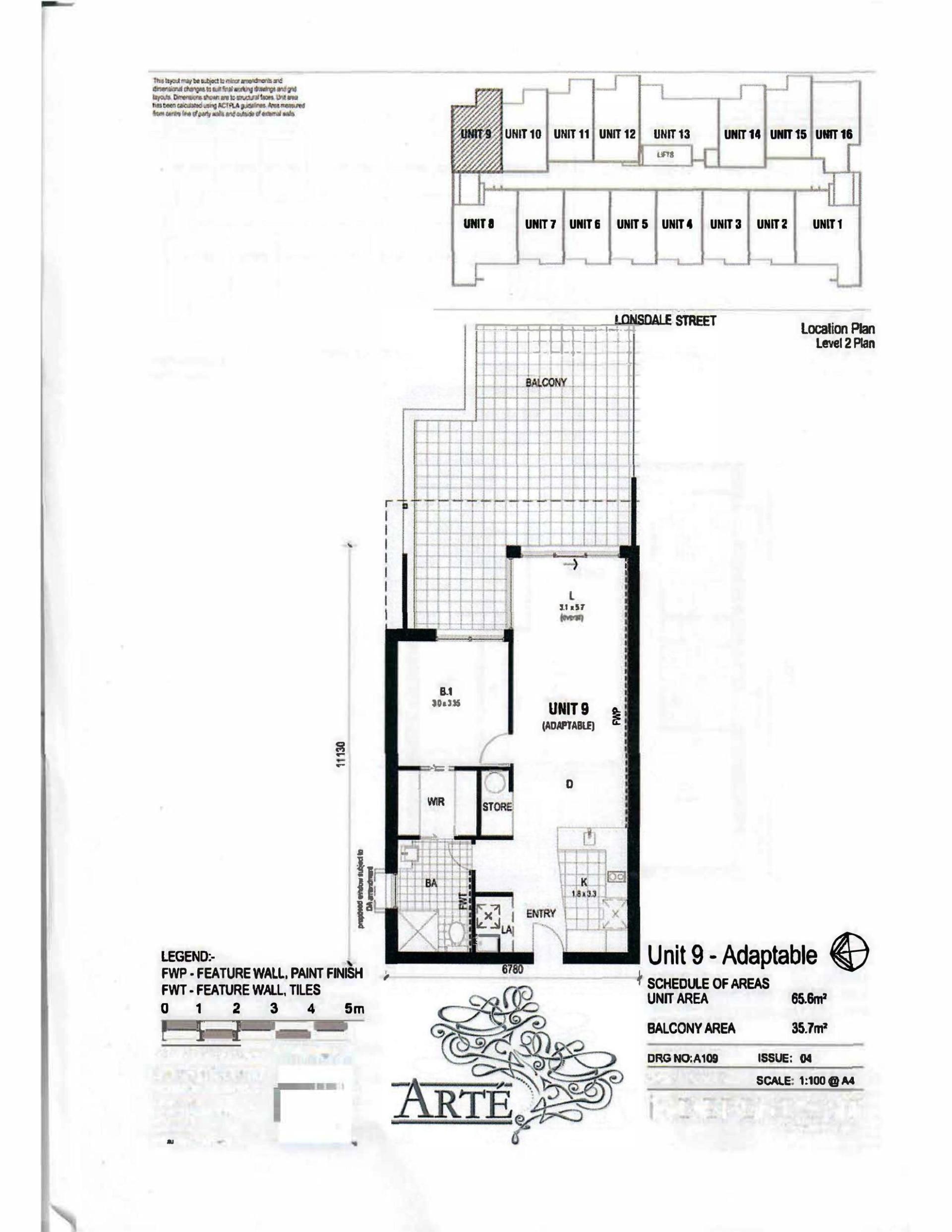
Executive apartment in the Arte Building. Adaptable floorplan, meaning wide doorways, extra large shower and 1.5 car spaces.

Features that set this property apart from others in the area:
• Double glazed windows and sliding doors, providing great insulation and noise cancellation
• Off street apartment with a 36sqm balcony, providing great views over the treetops to Mount Ainslie
• North-East facing with morning sunshine on the balcony, bedroom and living area
• The apartment is on a corner of the building, with an opening window in the bathroom, providing plenty of natural light and fresh air
• A 1.5 wide car space, providing extra room to get in and out of your car or room to store a motorcycle
• A large storage unit with a metal door so no one can see what is stored. Room to store several bicycles
• Well equipped kitchen with stone bench tops and Bosch appliances
• Walk through wardrobe
• European laundry with Fisher and Paykel appliances
• NBN ready
• Split system reverse cycle air conditioning
• Roof top balcony and barbeque area

This level 2 residence provides a peaceful easterly outlook where you can escape the stresses of the day, but still be within minutes of the Braddon and City night life. The best of both worlds.

The apartment has been well maintained and presents like new. The owners are happy to include the furniture and homewares in the sale for anyone who is starting out, or for investors who want to provide a fully-furnished rental property. Or, the apartment can be sold empty if that is preferred.

Key facts:
• Living 66sqm
• Balcony 36sqm
• EER 6.0
• Rates $2,348 p.a
• Strata levies: $5,096 p.a.
• Land tax (investors): $2,977 p.a
• Estimated rent $580 p.w (fully furnished)
• Age: 2015

Details

Address 9/10-12 Lonsdale Street, Braddon
Price $520,000+
Property Type Residential
Property ID 1080
Category Apartment
Floor Area 66 m2

Share

Sale By Home Owner photo

Sale By Home Owner

1300 841 864